手机客户端官方微信号 WAP版 登录注册 收藏本站
当前位置:书画频道 > 频道介绍
书画频道美术馆
  书画频道美术馆坐落于北京市朝阳区奥林匹克森林公园南园内,是奥林匹克森林公园内标志性建筑之一,天然氧吧,大森林里的美术馆,也是书画频道对外经营的展览馆。
  书画频道一直致力于从多角度、多视觉、全方位、立体的展示我们中华文化的博大精深。以“弘扬书画艺术、推动书画艺术普及、打造书画艺术平台、发掘书画艺术瑰宝”为出发点,旨在传播高雅的先进文化,打造富有人文内涵的专业频道。
  书画频道美术馆以展示、收藏、研究、普及书画艺术为重点。主体建筑为后现代式风格建筑。四周廊榭围穿,绿荫环绕,风景秀逸。美术馆内展厅面积两千余平方米,墙面展线长180米。厅内完全采用三集色 防紫外线荧光灯照明,避免了阳光中紫外线照射对书画的损害,适合书画长期展览。同时为了配合灯光,地面采用较为粗糙密实的花岗石材,很好地解决了灯光反射的问题,使内部空旷的空间里,与作品发生关系的空间参数只有光的状态变化一项,体现出当代展览的一种理想状态。
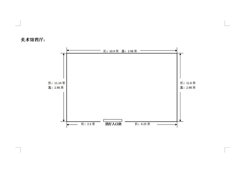
馆内分四个展厅(平面图展示)
展览效果图展示
  馆内设有贵宾厅,面积约50平方米,座位16个,适合举办小型学术研讨或报告等会议,可提前预约有偿使用。
美术馆藏品

  书画频道美术馆以“坚实基础、稳中求进”为宗旨,收藏、保管、陈列、研究我国近现代优秀美术作品;主办各种类型的中外美术作品展览;进行国内外美术学术交流;建立我国近现代美术史料、艺术档案,编辑出版藏品画集、理论文集。美术馆收藏近现代美术作品,品类有中国画、油画、水彩画、漆画、版画等各类具有时代特点和不同艺术风格的优秀作品。


      当代绘画名家张立辰、冯远、李宝林、郭怡孮、杜大恺、杨晓阳、郭石夫、霍春阳、贾广健、范迪安、徐里、韩书力、史国良、等300余位艺术家作品。


      当代书法名家欧阳中石、沈鹏、李铎、张海、申万胜、张飙、言恭达、谢云、段成桂、刘洪彪、张改琴、张旭光、张继等500余位艺术家作品。


美术馆主要展览

2022年7月20日举办——『经典传承』第二届全国少儿国画大展;
2022年7月1日举办——『扎根生活 寄情于民』刘万鸣书画作品展;
2022年6月17日举办——『江山颂』2022中国山水画研究院作品展;
2022年5月1日举办——『無盡意、痕』之“咏怀诵贤”冯远古典题材书画作品展;
2022年4月1日举办——『壬寅•仰山雅集』致敬经典名家手札作品展;
2022年3月12日举办——『和而不同 美美与共』五粮液书画藏品展;
2022年2月25日举办——中青年写实油画特邀展;
2022年1月24日举办——『大美之春』2022年美术界春晚作品特展;
2021年12月30日举办——『丹青壮怀』徐里书画作品展;
2021年12月8日举办——『绽放』安静油画作品展;
2021年11月25日举办—— 『飞入寻常百姓家』当代国画名家展售;
2021年11月12日举办——『妙笔文心』龚文桢 杨若云师生作品展;
2021年10月30日举办——『江山颂』段铁山水画作品展;
2021年10月18日举办——『云冈杯』第二届全国魏碑书法双年展;
2021年10月16日举办——『大墨无垠』邢少臣中国画展;
2021年9月26日举办——『百花齐放』郭怡孮花鸟画展;
2021年7月30日举办——『艺术为人民』十五周年绘画名家特展;
2021年6月30日举办——『庆祝中国共产党成立100周年•江山颂』陈克永绘画作品特展;
2021年5月28日举办——『庆祝中国共产党成立100周年•翰墨铸魂 』张仁芝山水画展;
2021年5月15日举办——『远坡无尽』邓远坡大写意花鸟画展;
2021年4月28日举办——『明道若昧』郭石夫艺术展;
2021年3月23日举办——『辛丑•仰山雅集说句心里话』纪念中国共产党建党100周年感怀雅集;
2021年3月1日举办——『春和景明』书画频道迎春作品展售;
2021年1月20日举办——『大美之春』美术界春晚作品特展;
2020年12月27日举办——『云冈杯』首届全国魏碑书法双年展;
2020年12月4日举办——『经典传承』全国少儿国画大展;
2020年11月14日举办——『金牛歌盛世』王同仁 戴顺智国画精品邀请展;
2020年11月5日举办—— 『中国梦•翰墨朝阳』第四届全国书法大赛获奖作品展;
2020年10月15日举办——『大美山川 画意成都』中国-东盟艺术学院美术教学研究展;
2020年9月27日举办——『传承文心』吴悦石大写意绘画作品展;
2020年8月21日举办——『江山颂』2020中国山水画研究院作品展;
2020年8月5日举办——第四届『一代精神属花草』大写意花鸟画名家作品展;
2020年7月18举办——『游心内运』飞入寻常百姓家油画作品展售;
2020年1月13日举办——『大美之春』2020年美术界春晚作品特展;
2019年12月25日举办——『新春纳福』书画名家作品进万家大型文化惠民展售;
2019年8月21日举办——『庆祝新中国成立70周年』十省美协主席特邀展;
2019年6月2日举办——『盛世华诞七十周年』书画名家作品进万家惠民展售;
2019年5月20日举办——『盛世华诞七十周年』十省书协主席书法精品特邀展;
2019年1月6日举办——『风虎云龙饶变化 诗书墨海任纵横』刘振涛书法艺术展;
2018年12月12日举办——『丘壑澄怀』中国书画名家学术展;
2018年11月28日举办——『与时代同行』十省画院院长特邀展;
2018年10月17日举办——『与时代同行』十省书协主席特邀展;
2018年9月27日举办——『格物精微.意象抒怀』郭怡孮、叶毓中、龚文桢中国画精品特邀展;
2018年9月7日举办——『与时代同行』十省美协主席特邀展;
2017年12月24日举办——『江山颂』中国山水画研究院作品展;
2017年12月5日举办——『河山如画图』中国美术家协会河山画会成立三十周年艺术展;
2017年10月20日举办——『绿水青山』青绿山水画名家学术邀请展;
2017年9月25日举办——『艺术为人民』中国著名人物画大家作品展;
2017年8月30日举办——『索器问道』中国版画名家作品展;
2017年7月28日举办——『军旗飘扬』庆祝建军90周年军旅画家主题创作展;
2017年7月7日举办——『一代精神属花草』当代八大家写意花鸟画展;
2016年10月27日举办——『军旗飘扬』军旅名家绘画作品特邀展;
2016年10月15日举办——『丹青寄怀』陈良敏画展;
2016年9月25日举办——『正道沧桑』邢少臣中国画展第四回;
2016年9月1日举办——『文化品位』2016年度中国画名家邀请展;
2016年6月12日举办——『崇尚经典』张铜彦书法作品展;
2015年10月25日举办——『国风归来』周韶华艺术作品展”;
2015年10月12日举办——『乾坤大义』卢禹舜中国画展”巡回展;
2015年9月28日举办——李爱国中国画展;
2015年8月17日举办——『大山回响』2015·李宝林师生画展;
2015年4月29日举办——『视道如花』贾广健中国画作品展;
2015年2月15日举办——『品味·品位』马海方没骨彩墨人物画迎春展;
2014年4月29日举办——『笔墨江山』 程大利 龙瑞 范扬 曾来德 国画精品特邀展;
2014年4月5日举办——『上巳雅集』致王羲之的一封信;
2013年9月28日举办—— 『苍茫无语』班禅画师尼玛泽仁美术作品展;
2012年3月1日举办——『春意』俄罗斯油画展;
2012年2月17日举办——严隽泰伉俪『低语』油画展,为两岸书画艺术发展交流作出了积极的贡献;
2011年11月22日举办—— 『诗语·世语』——意大利现当代艺术家马可·奈洛·罗泰利(Marco Nereo Rotelli)作品展;
对外合作

  书画频道美术馆与时代同行,塑造一个开放、自由的空间,并竭诚与艺术家及观众进行良好的互动。美术馆以书画频道为依托基础,策划与国际接轨的各式展览及学 术活动,使美术馆成为国内外艺术交流的平台,为公众以及中外艺术家提供一个观摩学习展示空间。使其成为学术性、专业性、国际化的美术馆。

  书画频道美术馆在利用自身电视媒体优势的同时,与全国200多家媒体保持着良好的合作关系,通过内外部媒体公关资源的有效整合,建立了一个广泛的宣传平台,为展览艺术家提供全面专业的媒介推广服务。

联系方式
地  址: 北京朝阳区奥林匹克森林公园南园森林艺术中心书画频道美术馆
邮寄地址: 北京100108信箱6分箱
邮  编: 100108
联系电话: 010-64529368 010-64529369
网  址: www.shtv.net.cn
电子邮件: shpd@cibn.com
开馆时间: 9:00-17:00